Атомный ледокол «Арктика» пр. 22220 (ЛК-60Я)

От ладьи и коча до атомохода.

Атомный ледокол пр. 22220 (ЛК-60Я)

Сообщение Анна Юдина » 21 Август 2012 15:15

Иван Кукушкин пишет:Можно даже обзор написать, какой планировки будут каюты и чем будут отделаны.


Шикарная идея, кстати. Займемся этим опосля отпуска ;)
Ну, или когда объявят о заключении соглашения между Атомфлотом и БЗ.
Аватара пользователя
Анна Юдина
Редактор
Редактор
 
Сообщения: 526
Зарегистрирован: 27 Декабрь 2011 14:30

Атомный ледокол пр. 22220 (ЛК-60Я)

Сообщение SVF » 21 Август 2012 15:31

А на нем каюта №% есть?

Я к ней не ровно дышу :yes:
SVF
Редактор
Редактор
 
Сообщения: 4400
Зарегистрирован: 23 Июль 2008 20:20

Атомный ледокол пр. 22220 (ЛК-60Я)

Сообщение Анна Юдина » 21 Август 2012 16:00

Номер пять что ли? :D
Я тоже к ней неровно дышу, так нечестно!!!
Аватара пользователя
Анна Юдина
Редактор
Редактор
 
Сообщения: 526
Зарегистрирован: 27 Декабрь 2011 14:30

Атомный ледокол пр. 22220 (ЛК-60Я)

Сообщение Иван Кукушкин » 21 Август 2012 16:09

SVF пишет:А на нем каюта №% есть?
Я к ней не ровно дышу :yes:

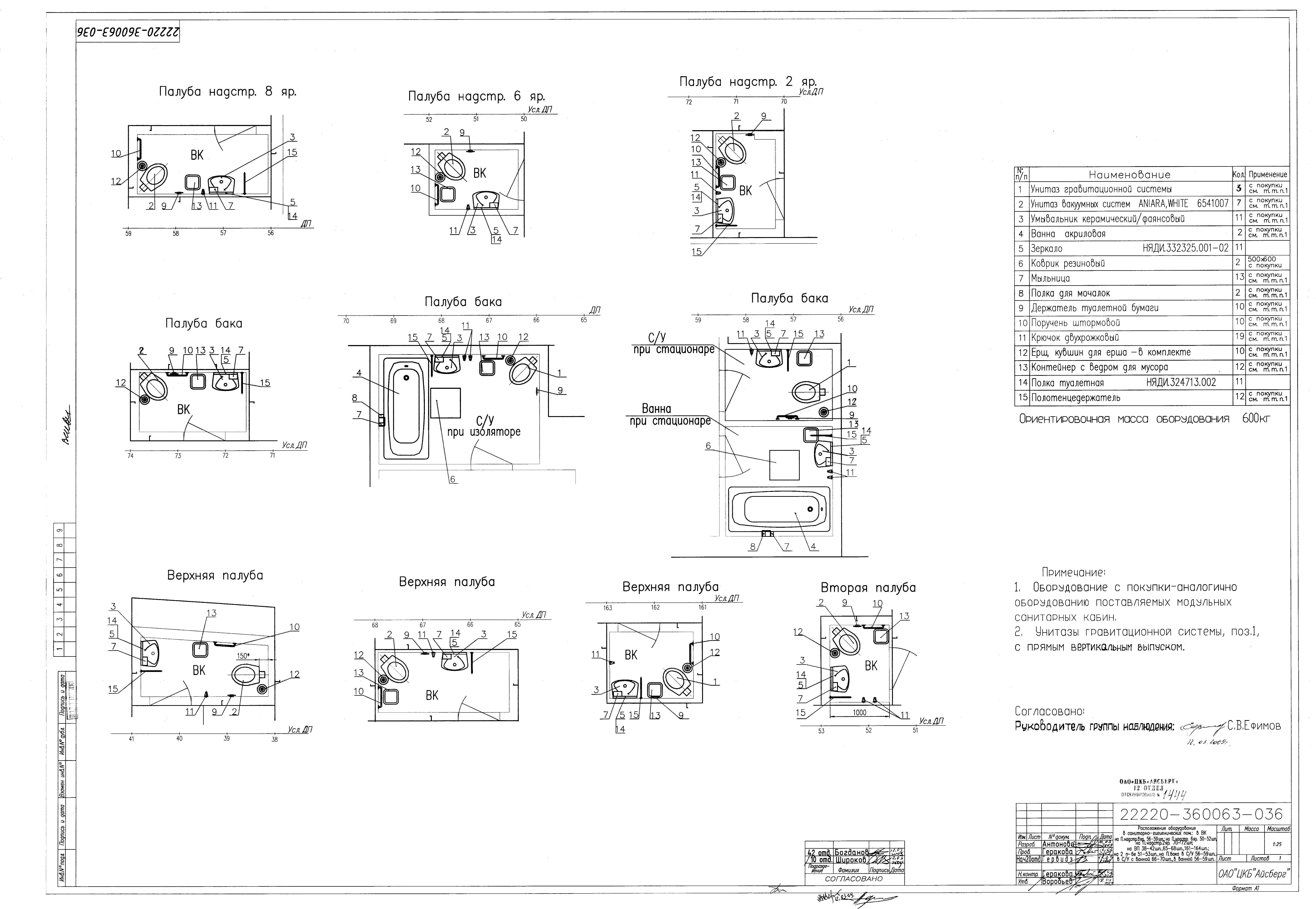
Это оно?

 22220.360063.036_2687.jpg
Аватара пользователя
Иван Кукушкин
 
Сообщения: 11094
Зарегистрирован: 17 Июнь 2007 05:52
Откуда: Нижний Новгород

Атомный ледокол пр. 22220 (ЛК-60Я)

Сообщение SVF » 21 Август 2012 16:29

Нет, я конечно про 5-ю каюту )). Хотя она как раз и отличается от всех комсоставовских тем, что в ней гальюна нет. Удобства - во дворе :yes:
SVF
Редактор
Редактор
 
Сообщения: 4400
Зарегистрирован: 23 Июль 2008 20:20

Атомный ледокол пр. 22220 (ЛК-60Я)

Сообщение Анна Юдина » 21 Август 2012 17:05

SVF пишет:Нет, я конечно про 5-ю каюту )). Хотя она как раз и отличается от всех комсоставовских тем, что в ней гальюна нет. Удобства - во дворе :yes:


А может, на новом будет в этой каюте))
А на "России" и ничего себе такой двор - там тепло и уютно, и кроме радистов никто не ломится! :D
Аватара пользователя
Анна Юдина
Редактор
Редактор
 
Сообщения: 526
Зарегистрирован: 27 Декабрь 2011 14:30

Атомный ледокол пр. 22220 (ЛК-60Я)

Сообщение Иван Кукушкин » 21 Август 2012 19:00

SVF пишет:Нет, я конечно про 5-ю каюту )). Хотя она как раз и отличается от всех комсоставовских тем, что в ней гальюна нет. Удобства - во дворе :yes:

Каюты есть все, но на по-палубном плане нумерация отсутствует.
Где ее искать-то?
Аватара пользователя
Иван Кукушкин
 
Сообщения: 11094
Зарегистрирован: 17 Июнь 2007 05:52
Откуда: Нижний Новгород

Атомный ледокол пр. 22220 (ЛК-60Я)

Сообщение Анна Юдина » 21 Август 2012 20:30

На "России" каюта номер пять расположена по правому борту - фактически напротив капитанской.
Аватара пользователя
Анна Юдина
Редактор
Редактор
 
Сообщения: 526
Зарегистрирован: 27 Декабрь 2011 14:30

Атомный ледокол пр. 22220 (ЛК-60Я)

Сообщение Иван Кукушкин » 21 Август 2012 20:34

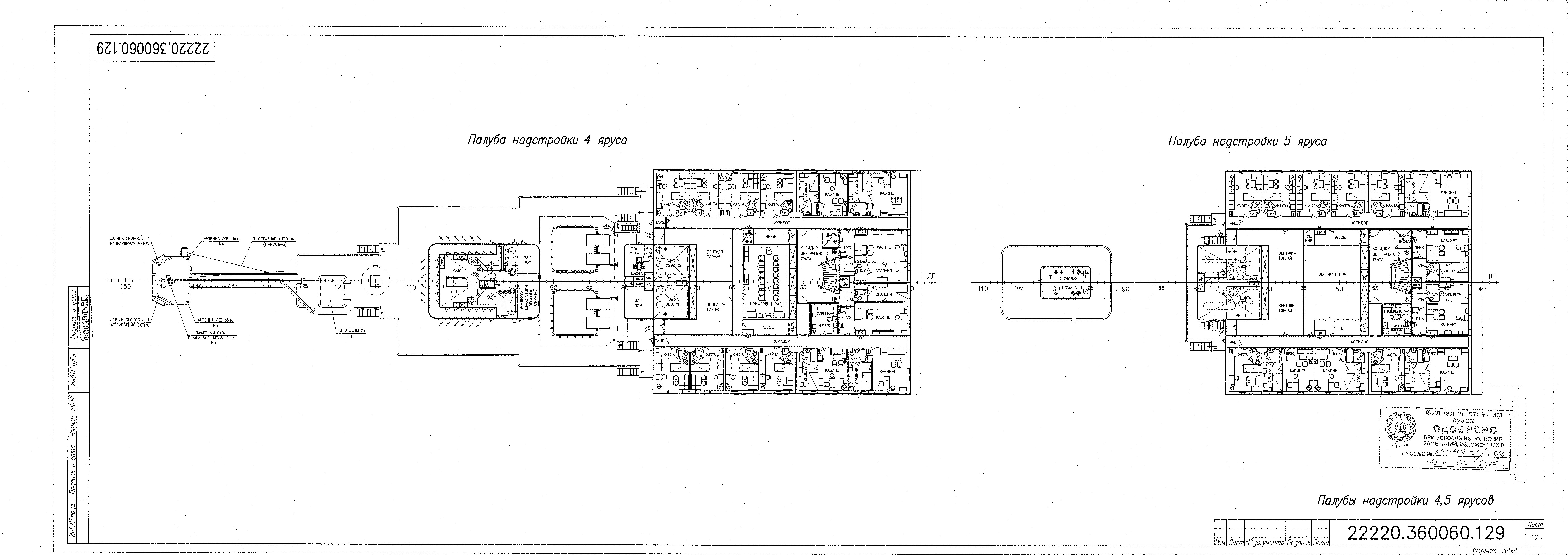
Капитанская каюта и салон есть, на шестом ярусе:
 13.jpg

Но №5 похоже будет на пятом:
 12.jpg
Аватара пользователя
Иван Кукушкин
 
Сообщения: 11094
Зарегистрирован: 17 Июнь 2007 05:52
Откуда: Нижний Новгород

Атомный ледокол пр. 22220 (ЛК-60Я)

Сообщение Анна Юдина » 21 Август 2012 20:38

В чертежах совсем не разбираюсь; меня если носом ткнуть в пространственную модель - уже не ошибусь))
Аватара пользователя
Анна Юдина
Редактор
Редактор
 
Сообщения: 526
Зарегистрирован: 27 Декабрь 2011 14:30

Атомный ледокол пр. 22220 (ЛК-60Я)

Сообщение Иван Кукушкин » 21 Август 2012 20:39

Не, пространственную модель на госзакупках не выдавали. :)
Аватара пользователя
Иван Кукушкин
 
Сообщения: 11094
Зарегистрирован: 17 Июнь 2007 05:52
Откуда: Нижний Новгород

Атомный ледокол пр. 22220 (ЛК-60Я)

Сообщение Анна Юдина » 21 Август 2012 20:45

Во-во. На заводе надо смотреть. Буду ползать и оценивать :D
Аватара пользователя
Анна Юдина
Редактор
Редактор
 
Сообщения: 526
Зарегистрирован: 27 Декабрь 2011 14:30

Атомный ледокол пр. 22220 (ЛК-60Я)

Сообщение Анна Юдина » 23 Август 2012 15:18

Товарищи!!!
Свершилось.

Договор на постройку атомохода нового поколения подписан в Москве


МОСКВА, 23 авг - РИА Новости. Подписание договора на строительство головного универсального атомного ледокола нового поколения, который способен работать как на арктических реках, так и на трассах Северного морского пути, состоялось в Росатоме.
Договор подписали генеральный директор "Росатомфлота" Вячеслав Рукша и и.о. генерального директора ООО "Балтийский завод - Судостроение" Артем Пидник.
ООО "Балтийский завод - Судостроение" выиграло открытый конкурс на право заключения договора на строительство головного универсального атомного ледокола проекта 22220 мощностью 60 мегаватт. Цена договора составляет 37 миллиардов рублей. Срок окончания строительства - декабрь 2017 года. Технический проект ледокола разработан ОАО ЦКБ "Айсберг" в 2009 году.
По своим техническим характеристикам универсальный атомный ледокол, проектный срок службы которого определен в 40 лет, - двухосадочный - он способен работать как на трассах Северного морского пути, так и на реках Арктического региона и заменить действующие атомные ледоколы типа "Арктика" и "Таймыр". За счет большей ширины, чем у действующих ледоколов, новое судно сможет в одиночку проводить в Арктике танкеры водоизмещением до 70 тысяч тонн. Впервые будет построен ледокол способный преодолевать трехметровые льды.
Новый атомоход будет отличаться от предыдущего поколения ледоколов специальной балластной системой, которая позволит ему за определенное время менять осадку с максимальной на минимальную и обратно. Набирая воду в балластные емкости, атомоход будет "усаживаться" и увеличивать свою проходимость в тяжелых ледовых условиях. При подходе к устьям сибирских рек, где осадка судов должна быть не более 8,5 метра, судно будет сбрасывать балласт и всплывать.
В составе ядерной энергетической установки ледокола используется новый тип интегральной реакторной установки "РИТМ-200". Она будет более надежной и экономичной (перегрузка активной зоны понадобится раз в семь лет) и практически в два раза меньше по размерам, чем ныне существующие.
Аватара пользователя
Анна Юдина
Редактор
Редактор
 
Сообщения: 526
Зарегистрирован: 27 Декабрь 2011 14:30

Атомный ледокол пр. 22220 (ЛК-60Я)

Сообщение Анна Юдина » 23 Август 2012 15:19

И официальный релиз Атомфлота:

23 августа Федеральное государственное унитарное предприятие атомного флота (ФГУП «Атомфлот»), входящее в состав Государственной корпорации по атомной энергии «Росатом» и ООО «Балтийский завод – Судостроение» (входит в Западный центр судостроения – «дочку» Объединенной судостроительной корпорации) заключили договор на строительство головного универсального атомного ледокола нового поколения проекта 22220. 3 августа ООО «Балтийский завод - Судостроение» (г. С.-Петербург) в ходе открытого конкурса был утвержден комиссией «Росатома» исполнителем данного контракта. Открытый конкурс был объявлен в связи с Постановлением Правительства РФ № 660 от 29 июня 2012 года «Об осуществлении бюджетных инвестиций в строительство головного универсального атомного ледокола». Государственным заказчиком и инвестором строительства выступает Государственная корпорация по атомной энергии «Росатом», а заказчиком – застройщиком - ФГУП «Атомфлот».
Согласно условиям контракта, ООО «Балтийский завод – Судостроение» обязуется в срок до 30 декабря 2017 года построить ледокол ЛК-60Я «под ключ» и поставить его к причалу ФГУП «Атомфлот» в Мурманске. Согласно утвержденному графику, закладка ледокола на стапеле запланирована на ноябрь 2013 года, спуск на воду - на ноябрь 2015 года. Стоимость головного ледокола нового поколения составит 36 959 600 000,0 рублей.
Технический проект атомохода был разработан ОАО ЦКБ «Айсберг» в 2009 году. В составе ядерной энергетической установки используется новый тип интегральной реакторной установки «РИТМ-200».
По своим техническим характеристикам, универсальный атомный ледокол сможет одинаково эффективно работать в устьях сибирских рек и на трассах Северного морского пути. Кроме того, атомоход проекта 22220 станет самым большим и мощным в мире, а за счет увеличенной ширины (34 м. вместо 30 на атомоходах типа «Арктика»), универсальный атомный ледокол будет способен один проводить в Арктике танкеры водоизмещением до 70 тыс. тонн. Ледокол данного проекта сможет покорять льды до 3х метров.
Аватара пользователя
Анна Юдина
Редактор
Редактор
 
Сообщения: 526
Зарегистрирован: 27 Декабрь 2011 14:30

Атомный ледокол пр. 22220 (ЛК-60Я)

Сообщение Иван Кукушкин » 23 Август 2012 15:33

Интригует вопрос с названием.
Интересно, с участием кого из высших лиц будет проводится церемония закладки. Все же проект на 37 миллиардов, не абы что.
Аватара пользователя
Иван Кукушкин
 
Сообщения: 11094
Зарегистрирован: 17 Июнь 2007 05:52
Откуда: Нижний Новгород

Пред.След.

Вернуться в Полярный флот Росcии/СССР



Кто сейчас на конференции

Сейчас этот форум просматривают: нет зарегистрированных пользователей и гости: 3

Керамическая плитка Нижний НовгородПластиковые ПВХ панели Нижний НовгородБиотуалеты Нижний НовгородМинеральные удобрения